
Autorzy: Mateusz Graczyk, Bartłomiej Skowronek, Paulina Płuciennik
Inwestor : prywatny
Lokalizacja : Łajski
Kategoria: Wnętrza
Powierzchnia: 450 m²
Rok: 2021
Projekt identyfikacji graficznej we współpracy z DOT Studio
Kompleksowy projekt wnętrz części biurowej projektowanej przez nas nadbudowy i przebudowy budynku biurowego w gminie Legionowo, wraz z nową identyfikacją graficzną zakładu, projektem logotypu i strony internetowej.
Projekt wnętrz obejmuje dwie kondygnacje budynku. Na parterze znajduje się wiatrołap, dwie recepcje, gabinet prezesa, sala konferencyjna, pomieszczenie biurowe i łazienka ogólnodostępna. Dodatkowo, z głównego korytarza dostępna jest część produkcyjna budynku, dostępna jedynie dla uprawnionych osób, w odpowiednich strojach ochronnych i przy zachowaniu najwyższego reżimu sanitarnego.
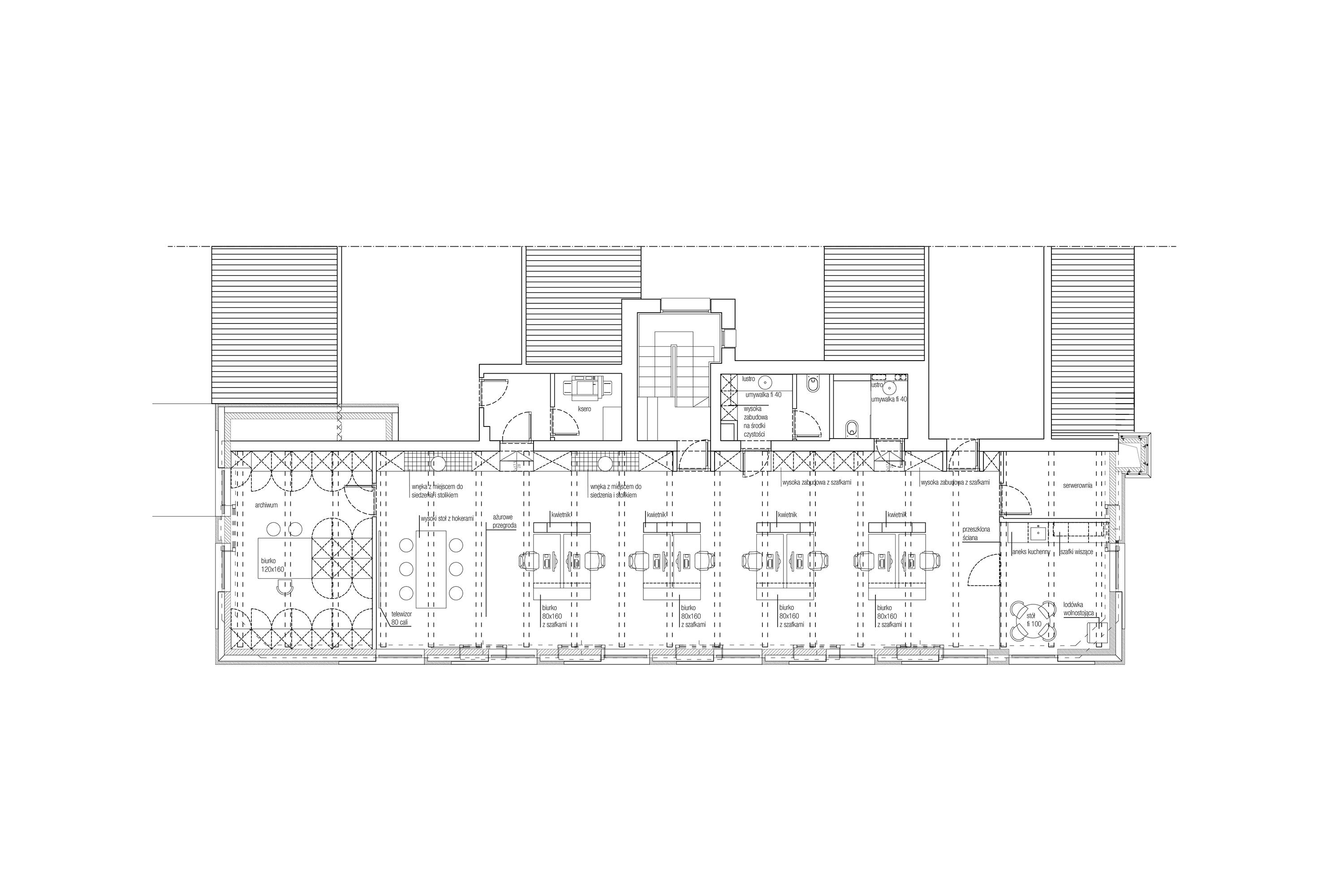
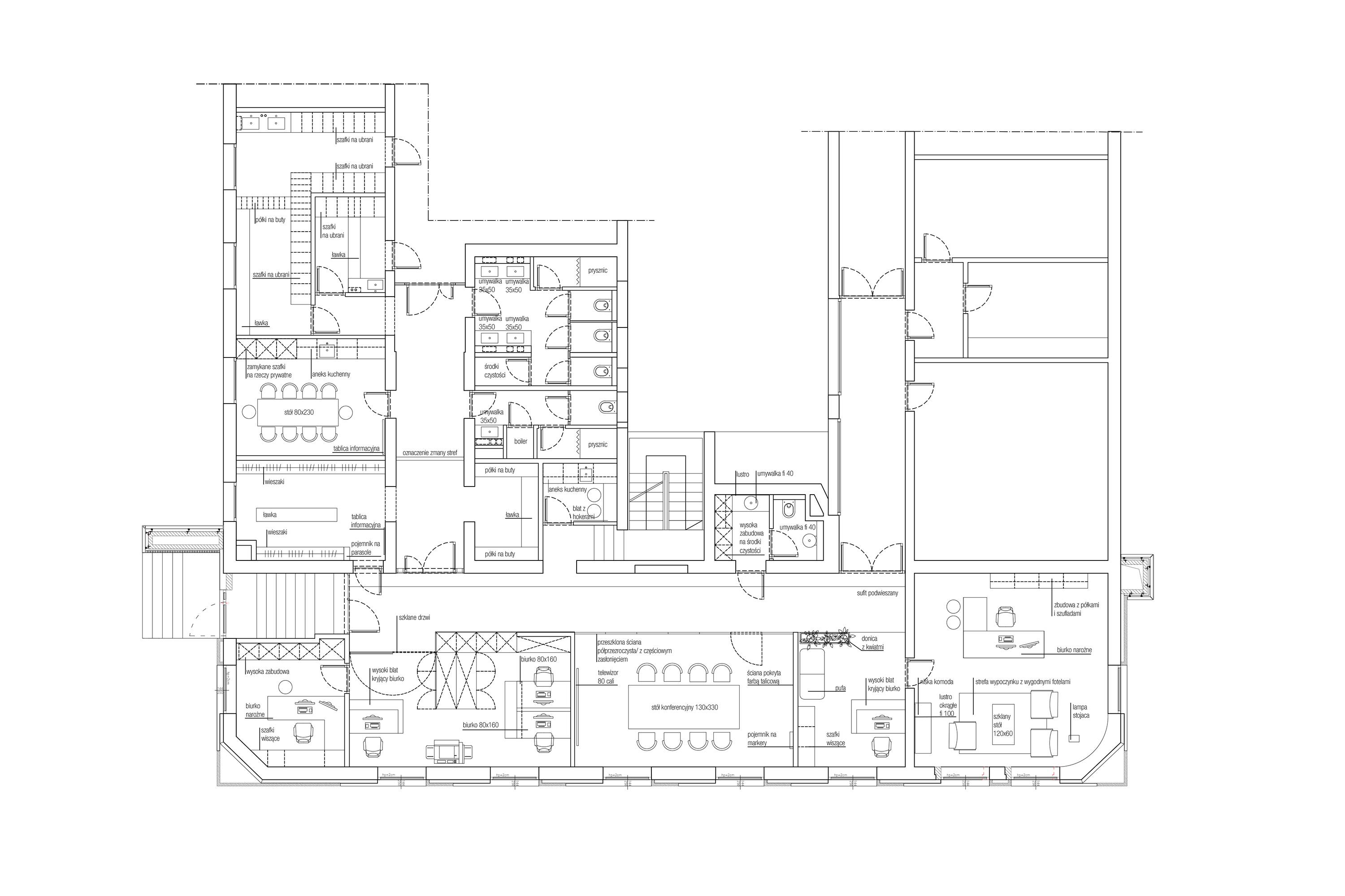
Nasz projekt objął także część strefy pracowniczej dla kilkudziesięciu pracowników, ze śluzą czystości, zespołami szatni, aneksem kuchennym i sanitariatami oraz wejściem na zakład produkcyjny.Na piętrze znajduje się przestrzeń biurowa typu open-space z aneksem kuchennym, łazienki pracowników biurowych, pomieszczenie archiwum oraz serwerownia.
Materiałem spajającym wszystkie pomieszczenia jest ulubiona przez Inwestora, betonowa posadzka. Eksponowaniu jej pomagają użyte w projekcie meble - oderwane od podłogi i uniesione na cienkich metalowych lub drewniancyh nóżkach. Beton pojawia się także na wielu ścianach i sufitach budynku. Większość mebli wykonana jest ze sklejki iglastej, w zestawieniu z betonem dopełniającej klimat wnętrz - będącej materiałem jednocześnie surowym, ale i ocieplającym oraz humanizującym wnętrza.
Duże okna i liczne szklane ścianki działowe sprawiają, że pomieszczenia są bardzo jasne. Komfortowi pracy sprzyja brak ekspozycji budynku na stronę południową. W projekcie dominują jasne materiały, pojawiają się kolory - z przewodnim kolorem charakterystycznym dla identyfikacji wizualnej Zakładu. Charakterystycznym elementem pomieszczenia open space jest kilkunastometrowa szafa ukrywająca także drzwi do pomieszczeń, oraz konstrukcyjne belki z drewna CLT na suficie, które przewidzieliśmy na etapie projektu budowlanego nadbudowy jako odsłonięte. Pomieszczeniem wyróżniającym się na tle innych jest reprezentacyjny gabinet prezesa, do przyjmowania gości i kontrachentów z całego świata, w którym sklejka zastąpiona została dębowym fornirem, pojawiają się obłości i miękkie materiały w postaci zasłon czy dywanu, a estetyka nawiązuje nieco do tej z pierwszej połowy XX wieku.Dodatkowo, aby spełnić oczekiwania klienta, opracowaliśmy całkowicie nową identyfikację graficzną zakładu - obejmującą projekt nowego logotypu, dobór palety kolorystycznej i typografii wraz z zasadami jej używania, symbole dekoracyjne i ostrzegawcze występujące we wnętrzach i na produktach Zakładu, tablice informacyjne, papier firmowy oraz nową stronę internetową. .