
Autorzy: Mateusz Graczyk, Bartłomiej Skowronek, Mateusz Mazurowski
Inwestor : Szkoła Główna Handlowa w Warszawie
Lokalizacja : Warszawa
Kategoria: Architektura użyteczności publicznej
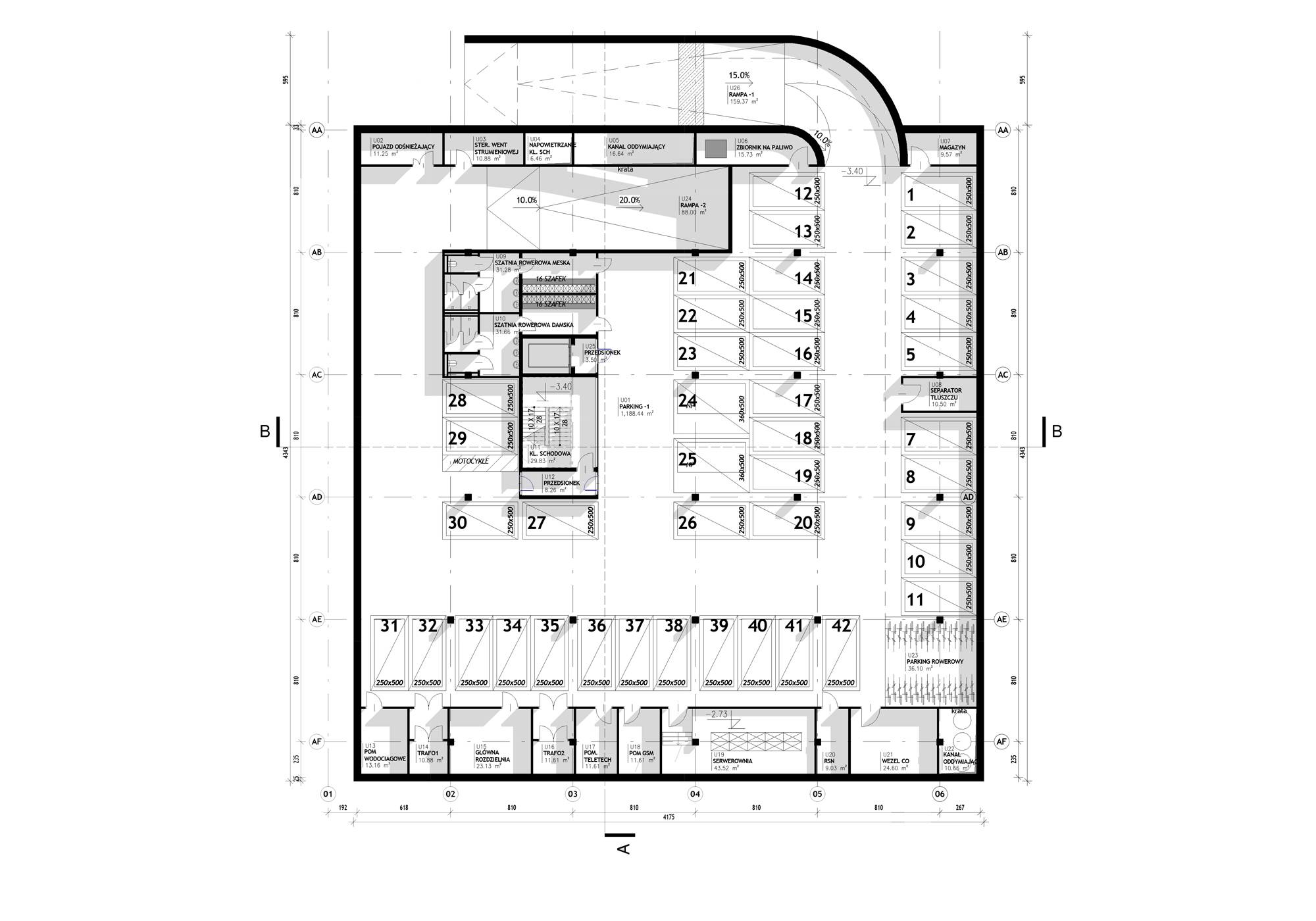
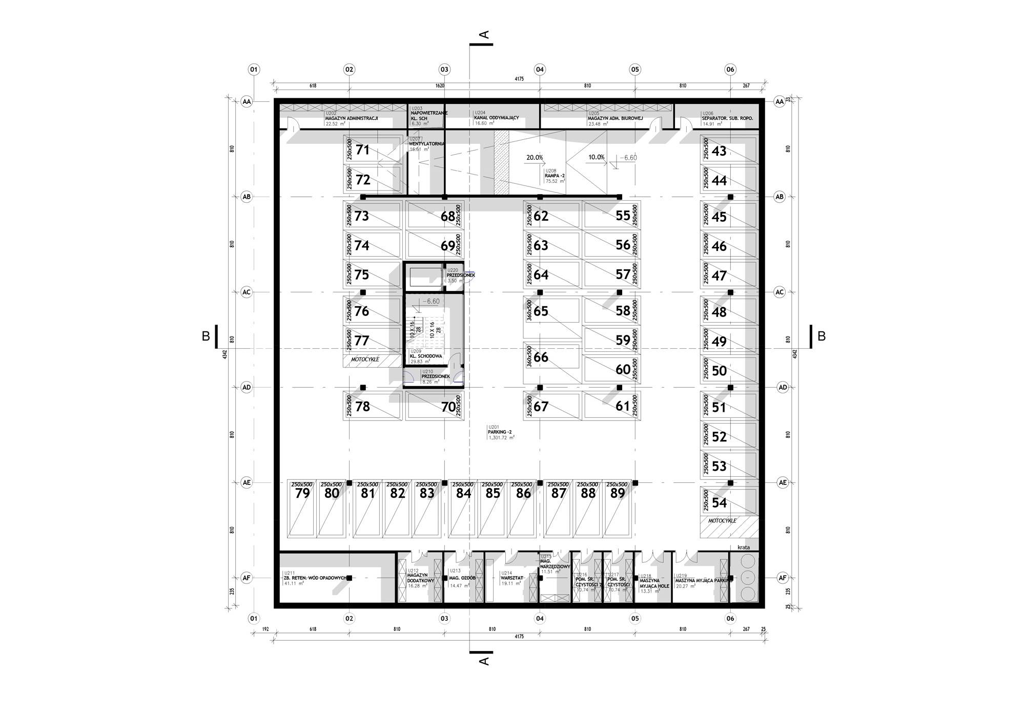
Powierzchnia: 11 035 m²
Rok: 2017
Konkurs architektoniczny na Centrum Przestrzeni Innowacyjnej dla Szkoły Głównej handlowej w Warszawie.
Obszar objęty opracowaniem znajduje się w Warszawie, na obrzeżach dzielnicy Śródmieście, przy ulicy Batorego. Graniczy bezpośrednio z dzielnicą Mokotów. Odwołując się do kart historii, warto zauważyć że kiedyś w tym miejscu znajdowało się lotnisko oraz tor wyścigów konnych, a także planowana była w latach 30 ubiegłego stulecia dzielnica im. Marszałka Piłsudskiego. Plany te przerwała II wojna światowa. Jest to ważne miejsce, położone w centrum miasta, wymagające odpowiedniej jakości architektury.
Celem założenia projektowego jest stworzenie obiektu funkcjonalnie wzbogacającego tę cześć miasta i urbanistycznie uzupełniającego jego tkankę. Ponadto priorytetowymi aspektami projektowymi było wytworzenie nowych, przyjaznych przestrzeni publicznych – jak ogólnodostępny zielony taras wypoczynkowo-widokowy. Założenia te, w zestawieniu z funkcją projektowanego obiektu, wpłynąć mają na poprawę atrakcyjności tej przestrzeni śródmiejskiej. Otoczenie zagospodarowywanego terenu stanowi wyrazisty kontekst dla nowoprojektowanego obiektu, zwłaszcza charakterystyczne i zwarte założenie obiektów Szkoły Głównej Handlowej, którego częścią stanie się projektowany budynek. Układ i forma obiektu w trosce o kontekst urbanistyczny bazuje na wielkości i skali najbliższej zabudowy, rygorystycznie odnosząc się do wytycznych planu miejscowego. Obiekt wpisuję się w charakter otoczenia. Spełnia zasady atrakcyjnych przestrzeni dostępnych publicznie. Dopełnia a zarazem wyodrębnia się z otocznia stając się nowym punktem na mapie Warszawy.
Symetryczny układ budynku - zaakcentowany również w holu - przełamany jest w nim świadomie, ułożoną asymetrycznie kręconą klatką schodową. Schody prowadzą bezpośrednio do przestrzeni coworkingowej - wizualnie połączonej ze strefą wejściową i restauracją/kawiarnią poprzez rozległe przeszklenia. Jedną z podstawowych idei coworkingu jest wzajemne inspirowanie się pracujących we wspólnym otoczeniu ludzi, zajmujących się różnymi branżami. Podobnie cały budynek Centrum został zaprojektowany jako zbiór otwierających się na siebie przestrzeni o różnych funkcjach - które w razie potrzeby można przesłonić żaluzjami lub wydzielić przesuwnymi ściankami. Oprócz przestrzeni coworkingowej na pierwszym piętrze znajdują się ułożone po obwodzie budynku sale seminaryjne. Kolejne sale oraz laboratoria znajdują się na drugim piętrze. Prosty układ funkcjonalny powoduje, iż w zasadzie cała komunikacja w budynku, dzięki centralnemu atrium, doświetlona jest naturalnym światłem - bezpośrednim bądź odbitym. W przestrzeni ciemnej - między trzonami komunikacji pionowej a salami - ulokowano zespoły toalet. Ostatnia kondygnacja zajmowana jest przez część biurowo administracyjną. Wcięty fragment kondygnacji od strony północnej umożliwił wytworzenie przestronnego, zadaszonego tarasu z widokiem na zieleń Pól Mokotowskich. Klatki schodowe oraz windy umożliwiają wyjście na zielony taras na dachu Centrum. Obudowa klatek oraz dachowych central wentylacyjnych i infrastruktury technicznej przysypana jest ziemią, porośniętą roślinnością. Z tarasu rozciąga się atrakcyjny widok na park Pola Mokotowskie oraz w dalszym planie na 'skyline' Warszawy. Zwrócone w kierunku panoramy miasta, ułożone na skarpie schody terenowe, tworzą jakby miniamfiteatr - idealny do projekcji filmowych lub prezentacji. Zielona skarpa po przeciwległej stronie, zwrócona na południe, w ciepłe dni jest idealna do odpoczynku i rekreacji dla użytkowników Centrum. .