
Autorzy: Mateusz Graczyk, Mateusz Mazurowski, Bartłomiej Skowronek,
Inwestor : prywatny
Lokalizacja : Wrocław
Kategoria: Wnętrza
Powierzchnia: 320 m²
Rok: 2016
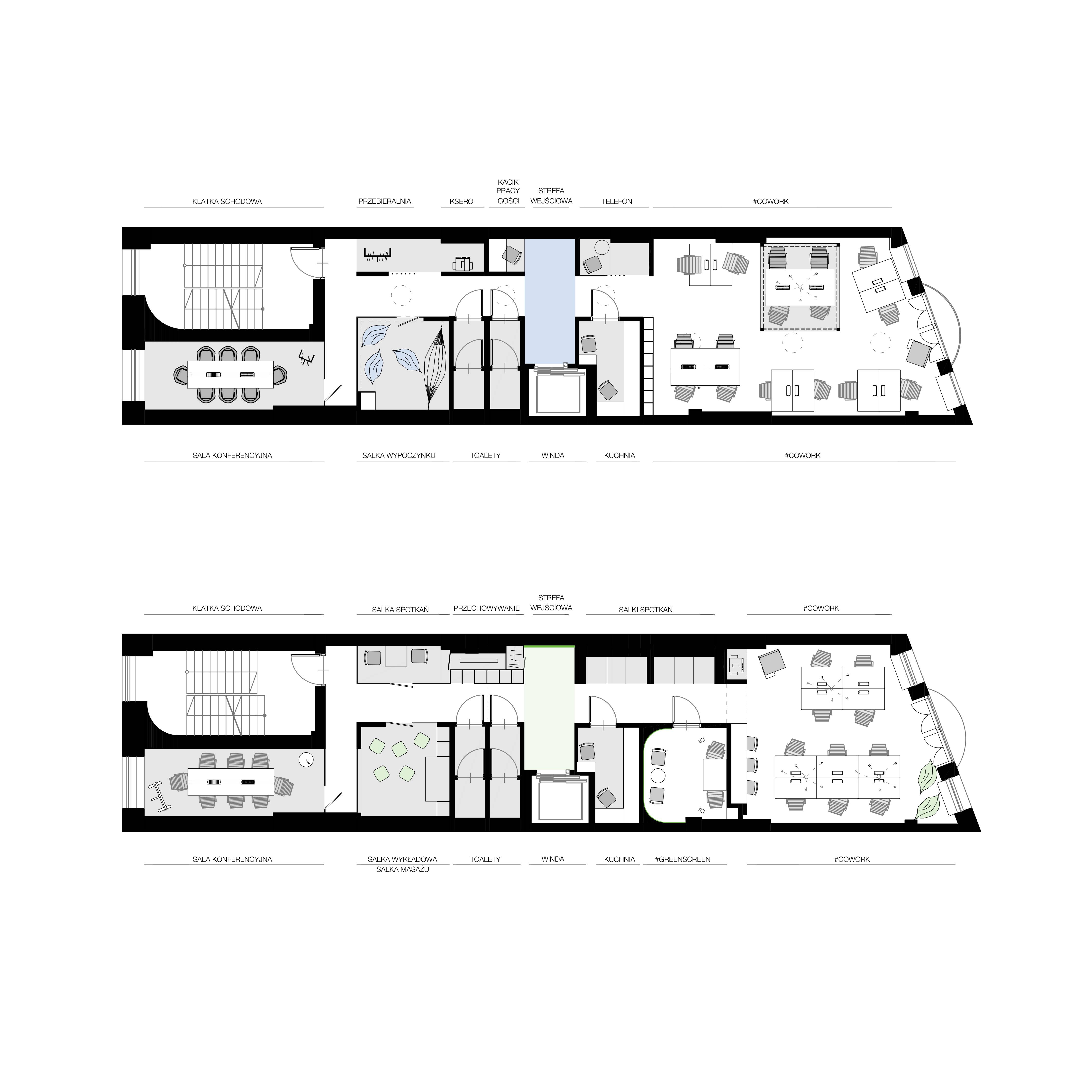
Projekt przestrzeni Coworkingowej zlokalizowanej w centrum Wrocławia. Życzeniem inwestora było stworzenie 25 miejsc pracy na dwóch piętrach odrestaurowanej kamienicy. Każdy z poziomów uzyskał oddzielną identyfikację wizualną wraz z charakterystycznymi elementami wyposażenia wnętrz. Monochromatyczne elementy wystroju korespondują z akcentami kolorystycznymi oraz ciepłem drewna.
Zgodnie z ideą współdzielonych przestrzeni biurowych przewidziano strefy towarzyszące dopełniające wynajmowane miejsce pracy. Sale konferencyjne, Callboxy, przestrzenie do rekreacji i relaksu wyizolowane akustycznie od reszty przestrzeni pozwalają na najbardziej efektywną pracę. Ogólnodostępne kuchnie wraz ze strefami do spożywania posiłków integrują wynajmujących. Sale multifunkcyjne z przesuwnymi przegrodami umożliwiają organizację spotkań lub prezentacji przeznaczonych dla większych grup
Meble biurowe zostały przygotowane do wycięcia na CNC ze sklejki białej lakierowanej. Modułowa konstrukcja umożliwia łatwe dopasowanie do potrzeb użytkowników. Ściany malowane farbą IdeaPaint dają swobodę w notowaniu swoich przemyśleń, zadań dla grup i stanowią istotny aspekt w przestrzeniach tego typu.